DRAY-GX200 System

DRAY-GX200

The Reliable 4-Way FMTS System

Dray-GX200 is a professional-grade floor-mounted general radiography system. Featuring a 40KW high-frequency generator and 4-way floating table, it delivers exceptional image quality and operational flexibility for comprehensive diagnostic imaging.

  • Output Power: 40KW High Frequency Generator
  • Tube: High-performance Canon Tube (125kV)
  • Table: 4-Way Floating Table (Max 200kg Load)
  • Stand: Floor Mounted Tube Stand with Rotation
Inquiry Now

System Specifications

Generator ModelSGX-400S (40KW High Frequency)
Input Power120V / 220-240V~, 50/60 Hz
kV / mA Range40~125kV / 40~500mA
X-ray TubeCanon / Max 125kV / Focal Spot 1.0mm(Small), 2.0mm(Large)
CollimatorManual / LED Lamp (Max 160 lux)
Tube StandFloor Mounted / Tube Rotation 135 / Column Rotation 90
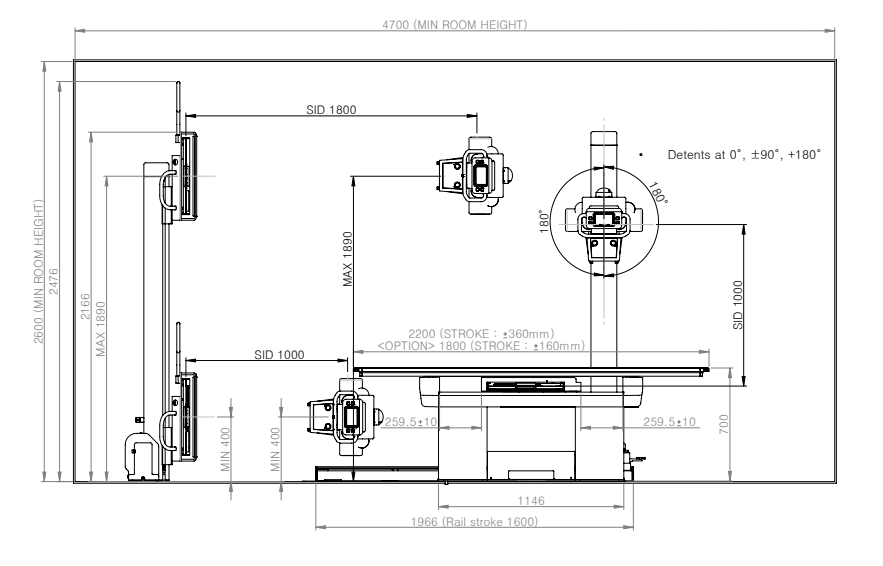
Bucky StandVertical Travel: Min 40cm ~ Max 189cm
Patient Table4-Way Floating / Max Weight 200kg / Size 220 x 80.6 cm

Dimensions & Range

DRAY-GX200 Dimensions

* Unit: mm

2025 DRX Imaging. All Rights Reserved.

P 82-2-6730-5535 | F 82-50-4341-6633 | M 82-10-5335-6633 | E sales@drximaging.com